78REN_Surélévation d’un bâtiment d’habitation pour la création d’un triplex à Viroflay

Contexte : Viroflay (78)
Maître d’ouvrage : Particulier
Surface : 110 m2
Budget des travaux : 389 000 €HT
Calendrier : Études en cours

Mission : Permis de construire
_______

Dispositions particulières : Secteur ABF
_______

Surélévation d’immeuble et création d’un triplex – une réponse architecturale à la densification urbaine

Ce projet de surélévation s’inscrit dans une démarche contemporaine de transformation du bâti existant, visant à créer de nouveaux espaces de vie sans extension au sol. À travers la réalisation d’un logement en triplex, l’intervention valorise le potentiel d’un immeuble existant tout en répondant aux enjeux actuels de densification urbaine et de sobriété foncière.

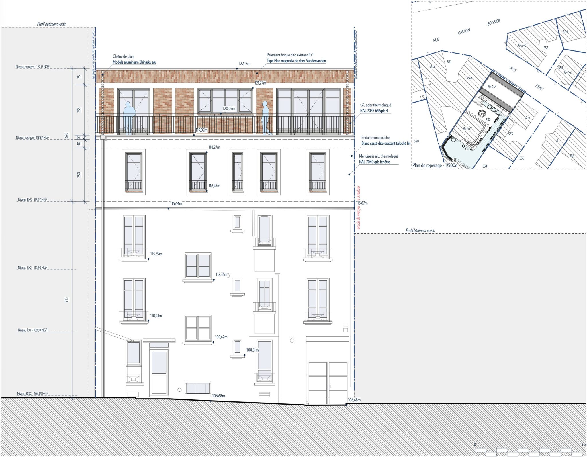
L’architecture du projet repose sur une composition lisible et hiérarchisée : conservation du socle existant, continuité du volume principal et création d’un attique contemporain en retrait. Cette surélévation permet d’augmenter la surface habitable sans modifier l’implantation, tout en améliorant la qualité d’usage grâce à la création d’espaces extérieurs en toiture.

Le traitement architectural développe un dialogue maîtrisé entre ancien et contemporain. Les façades existantes sont conservées et mises en valeur, tandis que le volume ajouté affirme une écriture sobre et élégante. Le rythme des ouvertures, la verticalité des percements et la composition générale assurent une intégration harmonieuse dans le tissu urbain environnant.

Le choix des matériaux participe pleinement à cette démarche : parement en brique pour la surélévation, menuiseries aluminium thermolaquées et garde-corps métalliques fins. Cette palette restreinte garantit une cohérence esthétique durable et renforce l’identité architecturale du projet.

Cette opération de surélévation démontre la pertinence d’une approche architecturale responsable, capable de concilier valorisation du patrimoine existant, optimisation des surfaces et qualité des espaces de vie.

Mots-clés : surélévation immeuble, extension verticale, création triplex, densification urbaine, transformation bâtiment existant, architecture contemporaine, attique, rénovation lourde, optimisation foncière, logement en hauteur.